11x11 Clear Western Red Cedar Custom Sauna Kit
From $13,875.60
To $19,260.95
In stock
This is a 12+ Person COMPLETE Sauna Package
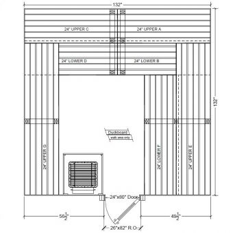
132"D x 132"W x 84"H
- Only Select Grade Vertical Grain Clear Western Red Cedar is Used. Each Clear Cedar Board is Obsessively Inspected and Hand Selected to Ensure the Color Matches Perfectly
- Simple Installation with the Included Choice of Pre-Hung Doors
- Double Tier U-Shaped Pre-Assembled Benches are Included
- Your Choice of Finnish Manufactured Premium Sauna Heaters that are UL and cUL Listed
- Aluminum Foil Sauna Vapor Barrier is Included
- Specialized Vapor Proof Sauna Light, Cedar Vents, Pre-Assembled Heater Guard Rail and Backrests, All Detailed Trim Mouldings for Corners and Hardware are Included
- All Sauna Building Material is Included
- See Description below for the Complete List of Items Included
Only the Best Will Do
This is a complete sauna package with all of the specialized sauna materials needed to build a luxury, twelve plus person traditional sauna for your home or for commercial use. This package features only the highest grade of sauna materials, heater and accessories available. The materials are assembled and packaged by the largest sauna manufacturer in the United States to guarantee that you receive a quality sauna you will be able to enjoy for years to come.
Quality and Attention to Detail Matter
This sauna kit includes only vertical grain, select grade, clear western red tongue and groove cedar boards, an industry first. A classification of select grade is the highest grade, found in only 15% of clear western red cedar available. This exceeds "Grade A"cedar that can be found in most other saunas and kits available in stores and online. The vertical grain, select grade, clear western red cedar is hand selected from continuous 8 foot boards, where all of the darkest color boards are discarded and lighter color boards are matched. This insures that your sauna will be made from the finest material available and will appear as beautiful as the first day of use through decades to come. The clear western red cedar provided in this sauna kit will be vertical boards that run from top to bottom, never using a bench as a mask to hide shorter boards to cut material costs. We are dedicated to providing the world's finest sauna kit materials available.
Classic and Functional Design
This sauna kit includes double tier U-shaped pre-assembled sauna benches made from 2"x 4"western red cedar frames. The top of the sauna benches is made from 1"x 4"clear western red cedar boards. The top benches have a backrest that is pre-assembled along the upper benches for simple installation. The sauna doors that are offered in this sauna kit are both pre-hung to save you time. The 24"x 80"Douglass Fir sauna door is installed into a Mahogany frame. The Douglass Fir sauna door matches perfectly with the cedar and includes a 15"x 64"Tempered Glass Window that is 1"thick. If you prefer you can also choose an all glass sauna door. Both the Douglass Fir as well as the all glass sauna door are designed for heavy commercial sauna use. Both doors are incredibly durable, flawlessly built and beautiful.
A Great Sauna Starts With A Great Heater
All of the sauna heater options offered in this kit have a large rock capacity, built to pour water over, for a true steamy Finnish sauna experience. These premium heaters are made in Finland and are also both UL and cUL Listed to ensure their safe use in your home or commercial setting. Fino Sauna and Polarsauna heaters can be configured for this kit. Choose the heater that best fits your need:
- Polar LA commercial heater uses mechanical separate controls which mount on the wall outside the sauna
- FINO commercial sauna heater with separate controls which mounts outside the sauna wall
The Polar sauna heater includes a 1 year warranty and the FINO sauna heater has a lifetime warranty.
A Complete Package
Everything is included in this sauna kit from the cedar louvered vents, cedar heater guardrail, Finnish sauna stones, specialized vapor proof sauna wall light, aluminum foil sauna vapor barrier to the detailed trim for the corners. Options that can be added are specialized LED spectra lighting as well as indirect lighting that is hidden behind the long cedar boards. These lighting options will give your sauna tremendous ambiance as well as a spectacular interior appearance. Extra cedar to finish a front wall outside of the sauna can also be added.
The interior dimensions of this sauna kit measures 132"D x 132"W x 84"H.
| Bench Configuration | U-Shaped |
|---|---|
| Heater (Kw.) | 15.0 |
| Height (Ft.) | 7 |
| Length (Ft.) | 11 |
| Cubic Footage | 831 |
| Width (Ft.) | 11 |
You may also be interested in
-
Polar Wood Burning Sauna Stove - 20 SL External FeedFrom $1,721.00
To $1,883.75
-
Polar PB88 Pre-Built, Modular Sauna RoomFrom $15,744.40
To $19,640.60
-
Polar PB810 Pre-Built, Modular Sauna RoomFrom $18,176.40
To $22,072.60








